Key Points in Fixture Design: All Internal Materials!

Table of Contents

Fixture design is typically carried out after the mechanical processing procedures for a part have been established, based on the specific requirements of a particular operation.

When formulating the processing procedures, the feasibility of fixture implementation must be fully considered.

Conversely, during fixture design, modifications to the processing procedures may be proposed if deemed necessary.

The quality of fixture design is evaluated based on its ability to consistently ensure stable workpiece quality, high production efficiency, low cost, convenient chip removal, safe and effort-saving operation, as well as ease of manufacturing and maintenance.

Fundamental Principles of Fixture Design

1. Ensure stable and reliable workpiece positioning during operation;

2. Provide sufficient load-bearing or clamping force to guarantee machining processes on the fixture;

3. Facilitate simple and rapid operation during clamping;

4. Wear-prone components must feature quick-change structures, ideally without requiring additional tools when feasible;

5. Ensure reliable repeatability during fixture adjustment or replacement;

6. Minimize structural complexity and cost whenever possible;

7. Prioritize standard components for assembly whenever feasible;

8. Establish systematic and standardized approaches for in-house product development.

Fundamentals of Fixture Design

An excellent machine tool fixture must meet the following basic requirements:

1. Ensure Workpiece Machining Accuracy

The key to guaranteeing machining accuracy lies primarily in correctly selecting the locating reference, locating method, and locating elements.

When necessary, locating error analysis should also be conducted.

Attention must be paid to the impact of other fixture components’ structures on machining accuracy to ensure the fixture meets the workpiece’s machining precision requirements.

2. Enhance Production Efficiency

The complexity of specialized fixtures should align with production capacity.

Prioritize rapid, high-efficiency clamping mechanisms to ensure ease of operation, reduce auxiliary time, and boost productivity.

3. Ensure Good Process Performance

Fixture structures should be simple and rational, facilitating manufacturing, assembly, adjustment, inspection, and maintenance.

4. Provide Good Usability

Fixtures must possess sufficient strength and rigidity while being simple, effort-saving, safe, and reliable to operate.

Where objectively feasible and economically viable, prioritize pneumatic or hydraulic clamping devices to reduce operator workload.

Fixtures should facilitate efficient chip removal.

Where necessary, incorporate chip-evacuation structures to prevent chips from disrupting workpiece positioning or damaging tools, and to avoid deformation of the process system due to heat accumulation from chip buildup.

5. Cost-Effectiveness

Specialized fixtures should utilize standard components and structures wherever possible, striving for simplicity and ease of manufacturing to reduce production costs.

Therefore, during design, necessary technical and economic analyses should be conducted based on order volume and production capacity to enhance the fixture’s economic efficiency in manufacturing.

Overview of Standardized Fixture Design

  • Fundamental Methods and Steps for Fixture Design Pre-design Preparation

The source materials for fixture design include the following:

a) Design notification forms, finished part drawings, blank drawings, and process routes.

Understand the machining requirements for each operation, positioning and clamping solutions, preceding process content, blank conditions, machine tools, cutting tools, inspection gauges used in machining, machining allowances, and cutting parameters;

b) Production batch size and fixture usage requirements;

c) Key technical parameters, performance, specifications, accuracy, and interface dimensions of the machine tool’s fixture-mounting sections;

d) Availability of standard fixture components in inventory.

  • Considerations in Fixture Design

Fixture designs typically feature simple structures, appearing uncomplicated—especially with the widespread adoption of hydraulic fixtures that significantly simplify mechanical components.

However, neglecting detailed consideration during design inevitably leads to unnecessary complications:

a) Workpiece stock allowance.Excessive stock dimensions can cause interference. Therefore, prepare stock drawings before design to ensure adequate clearance.

b) Chip evacuation efficiency. Due to limited machine tool space, fixtures are often designed compactly.

This can overlook chip accumulation in fixture dead zones and hinder coolant flow, causing significant processing issues later.

Anticipate these problems early, as fixtures fundamentally aim to enhance efficiency and ease operation.

c) Overall accessibility of the fixture.Neglecting accessibility causes mounting difficulties for operators, wasting time and effort—a major design flaw.

d) Fundamental principles of fixture design.

Every fixture undergoes countless clamping and unclamping cycles.

While it may initially meet user requirements, fixtures must maintain dimensional accuracy.

Avoid designs that violate basic principles. Even if it works initially, it won’t last long.

A good design should stand the test of time.

e) Replaceability of locating elements.Since locating elements wear heavily, prioritize quick and easy replacement.

Avoid designing them as large components.Accumulating fixture design experience is crucial.

Sometimes design theory differs from practical application, so good design is an ongoing process of accumulation and refinement.

Common tooling fixtures are primarily categorized by function as follows:

01 Mold clamping fixtures

02 Drilling and milling fixtures

03 CNC and gauge chucks

04 Gas and water testing fixtures

05 Trimming and punching fixtures

06 Welding fixtures

07 Polishing fixtures

08 Assembly fixtures

09 Pad printing and laser engraving fixtures

1. Clamping Fixture Definition

A tool that positions and secures a workpiece by clamping onto its outer contours.

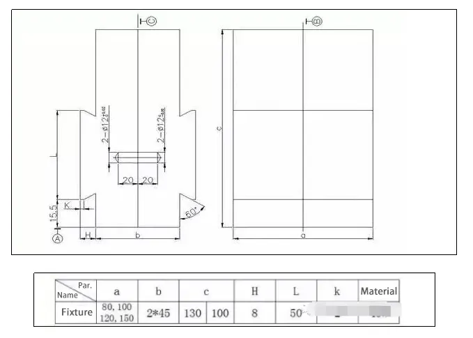
Fig 1 Tools for positioning and clamping products based on their shape
Fig 1 Tools for positioning and clamping products based on their shape

Design Considerations:

1) This type of clamping mold is primarily used on vices, with its length adjustable as needed;

2) Additional auxiliary positioning devices may be incorporated into the clamping mold, typically welded for connection;

3) The above diagram is simplified; cavity dimensions shall be determined based on specific requirements;

4) Install a 12mm diameter locating pin with a tight fit at an appropriate position on the movable mold; the corresponding locating hole on the fixed mold shall provide a sliding fit for the pin;

5) When designing the assembly cavity, the outer dimensions of the non-shrinkage blank drawing should be offset and enlarged by 0.1mm.

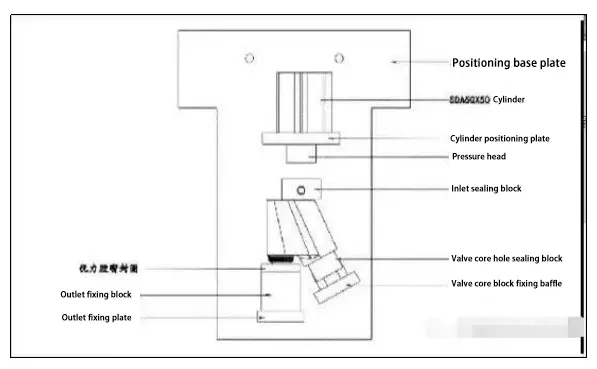
2. Drilling and Milling Fixtures

Fig 2 Drilling and milling fixture
Fig 2 Drilling and milling fixture

Design Considerations:

1) If necessary, incorporate auxiliary positioning devices on the fixed core and its mounting plate;

2) The above diagram is a simplified schematic; actual designs must be tailored to the product structure;

3) Cylinder selection depends on product dimensions and processing forces; SDA50X50 is commonly used.

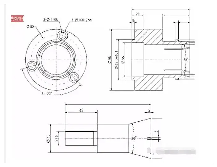
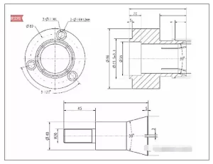
3. CNC and Instrument Chucks

A CNC Chuck

Internal Collet Chuck

Fig 3 Inner clamp
Fig 3 Inner clamp

Design Considerations:

1) Dimensions not specified in the above drawing shall be determined based on the actual inner hole dimensions of the product.

2) The outer circumference contacting the product’s inner hole for positioning must be manufactured with a 0.5mm allowance on one side.

Final sizing shall be achieved through precision turning on a CNC machine to prevent deformation and eccentricity caused by the quenching process.

3) Spring steel is recommended for the assembly section, while 45# steel is recommended for the tie rod section.

4) The M20 thread on the tie rod section is a common thread; this thread can be adjusted based on actual requirements.

Instrument Inner Clamp

Fig 4. Instrument internal clamp
Fig 4. Instrument internal clamp

Design Considerations:

1) The above diagram is for reference only. Assembly dimensions and structure shall be determined based on the actual product’s external dimensions and configuration.

2) Material: 45# steel, quenched and tempered.

Instrument Outer Clamp

Fig 5 Instrument outer clamp
Fig 5 Instrument outer clamp

Design Considerations:

1) The above diagram serves as a reference; actual dimensions shall be determined based on the product’s internal bore structure.

2) The outer circumference contacting the product’s internal bore for positioning must be manufactured with a 0.5mm allowance on one side.

Final sizing shall be achieved through precision turning on a dial lathe to prevent deformation and eccentricity caused by the quenching process.

3) Material: 45# steel, quenched and tempered.

4. Gas Testing Fixture

Fig 6 Gas testing fixture
Fig 6 Gas testing fixture

Design Considerations:

1) The above image serves as a reference for the gas testing fixture.

The specific structure must be designed based on the actual product configuration.

The approach is to seal the product using the simplest possible method, filling the section requiring seal verification with gas to confirm its integrity.

2) The cylinder size can be adjusted according to the actual dimensions of the product.

Additionally, ensure the cylinder stroke allows for convenient product loading and unloading.

3) Sealing surfaces in contact with the product should generally use materials with good compression properties, such as urethane rubber or NBR rubber rings.

Additionally, if locating blocks come into contact with the product’s exterior surface, use plastic blocks made of white rubber and cover them with cotton cloth during operation to prevent damage to the product’s appearance.

4) During design, consider the product’s orientation to prevent internal leakage of gas from becoming trapped within the product cavity and causing false-positive test results.

5. Punching Fixture

Fig 7 Punching fixture
Fig 7 Punching fixture

Design Considerations: The figure above illustrates a common structure for punching fixtures.

The base plate facilitates secure mounting on the punch press workbench; locating blocks secure the workpiece, with their specific design tailored to the product’s geometry, centered for convenient and safe loading/unloading; the stop plate aids in releasing the workpiece from the punch; the support pillar secures the stop plate.

The assembly positions and dimensions of these components can be customized according to the product’s requirements.

6. Welding Fixtures

Welding fixtures primarily secure the positioning of components within welded assemblies and control their relative dimensions.

Their structure mainly consists of locating blocks, which must be designed according to the actual product configuration.

It is important to note that when products are placed on welding fixtures, no sealed spaces should form between fixtures.

This prevents excessive pressure buildup in sealed areas during welding heating, which could adversely affect post-weld dimensional accuracy of components.

7. Polishing Fixture

Fig 8 Polishing fixture
Fig 8 Polishing fixture

8. Assembly Fixtures

Assembly fixtures are primarily used as positioning aids during component assembly processes.

Their design philosophy focuses on enabling convenient product handling based on assembly structures, preventing damage to product surfaces during assembly, and incorporating cotton cloth covers for product protection during use.

Material selection prioritizes non-metallic materials such as white glue.

9. Pad printing and laser engraving fixtures

Fig 9 Pad printing and laser engraving fixtures
Fig 9 Pad printing and laser engraving fixtures

Design Considerations: Design the fixture’s positioning structure based on the actual engraving requirements of the product.

Ensure ease of product loading and unloading, and protect the product’s appearance.

Positioning blocks and auxiliary positioning devices in contact with the product should preferably use non-metallic materials such as white glue.

Conclusion

Effective fixture design is the result of balancing accuracy, efficiency, usability, and cost while strictly adhering to fundamental design principles.

By emphasizing correct positioning, reliable clamping, standardized components, ease of operation, and long-term durability, fixtures can consistently support high-quality manufacturing outcomes.

Moreover, thoughtful consideration of chip removal, accessibility, wear-part replacement, and real-world application ensures that fixtures remain practical and robust over time.

Ultimately, fixture design is an experience-driven, iterative process that plays a vital role in modern, efficient, and standardized production systems.

FAQ

Fixture design is the process of creating devices that accurately locate, support, and clamp a workpiece during machining or assembly. It is critical because a well-designed fixture ensures machining accuracy, process stability, operator safety, and repeatable quality, while also reducing production time and manufacturing costs.

Fixture design directly impacts machining accuracy by controlling workpiece positioning, locating references, and clamping stability. Proper selection of locating methods and elements minimizes positioning errors, prevents deformation during machining, and ensures dimensional consistency across large production batches.

The core principles of fixture design include stable and reliable positioning, sufficient clamping force, quick and simple operation, repeatable accuracy, ease of maintenance, cost efficiency, and the use of standardized components. Adhering to these principles ensures long-term durability and consistent performance under repeated use.

Fixture design improves production efficiency by reducing setup time, enabling fast clamping and unclamping, and minimizing operator effort. High-efficiency fixtures—especially those using pneumatic or hydraulic systems—shorten auxiliary time, improve workflow, and support high-volume or automated production environments.

Key considerations include workpiece stock allowance, chip evacuation, fixture accessibility, wear-part replaceability, machine tool compatibility, and production batch size. Ignoring these factors can lead to interference issues, poor usability, reduced accuracy, and higher long-term costs.

Common industrial fixtures include mold clamping fixtures, drilling and milling fixtures, CNC chucks, gas and water testing fixtures, punching fixtures, welding fixtures, polishing fixtures, assembly fixtures, and pad printing or laser engraving fixtures. Each type is designed to meet specific process requirements, ensuring precision, safety, and efficiency across different manufacturing operations.

Scroll to Top