Aerospace Component Machining: Process Optimization and Fixture Design for High Efficiency Production
Table of Contents
This aerospace component has stringent material requirements and is primarily used in core aircraft components.
It must meet key performance criteria such as resistance to deformation and oxidation, high strength, corrosion resistance, and lightweight design.
Its complex structure typically requires traditional parallel-jaw vises; however, this clamping method makes adjustment difficult and offers poor repeatability, resulting in low production efficiency and an inability to meet the demands of mass production.
For these reasons, the existing traditional process requires improvement.
First, process parameters and machining strategies require optimization;
Second, appropriate cutting tools and materials require selection;
And finally, a high-quality fixture requires design to meet the requirements of minimal deformation and high batch production capability.
Analysis of Manufacturing Challenges
Due to the customer’s stringent precision requirements, the dimensional and quality pass rates for this aircraft component are only around 53%, as shown in Figure 1.
Since this is a batch production process, the absence of specialized fixtures results in low production efficiency.
This is primarily due to the product’s complex structure, which features numerous side holes and clamping points.

Process Analysis
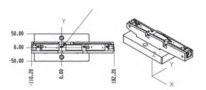
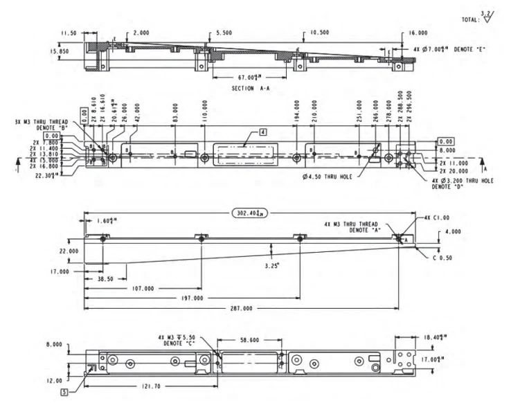
The dimensional tolerance grade of the part is 4IT–6IT. The blank has an elongated shape and includes as many as five machined surfaces.
The frequent re-clamping increases the risk of poor repeatability in positioning accuracy.
Three of these surfaces feature threaded holes and steps, and the step locations permit no tool marks.
The surface quality and finish are specified as Ra 3.2, followed by sandblasting, as shown in Figure 3.


Manufacturing Requirements
This part is used in aircraft and requires lightweight materials. With a total length of 302.4 mm and numerous thin-walled sections, clamping with a parallel-jawed vise presents significant limitations.
During machining, it is essential to prevent deformation and bending of the part, and all threaded holes must meet specifications.
Furthermore, as this part will undergo mass production, it must exhibit consistent precision and quality.
Material Selection
After comparing the materials listed in Table 1 based on the customer’s requirements and the part’s intended application, 7075 aerospace aluminum was selected as the material for machining.
Given that 7075 aerospace aluminum offers excellent machinability, low density, and high strength—all of which meet the product’s requirements—it was chosen from among the many available materials as the material for this product.
| Material Grade | Material Type | Density (g/cm³) | Tensile Strength (MPa) | Yield Strength (MPa) | Elongation (%) | Elastic Modulus (GPa) | Corrosion Resistance | Heat Resistance (°C) | Main Aerospace Applications |
|---|---|---|---|---|---|---|---|---|---|
| 7075-T6 (Aerospace Aluminum) | High-strength aluminum alloy | 2.81 | 572 | 503 | 11 | 71 | Medium (requires anodizing/spray coating; avoid stress corrosion) | ≤120 | Aircraft frames, wing spars, landing gear components, aerospace fasteners, wing skins |
| 2024-T3 (Aerospace Aluminum) | Hard aluminum alloy | 2.78 | 483 | 345 | 18 | 73 | Medium (prone to stress corrosion cracking; requires anti-corrosion treatment) | ≤100 | Wing skins, fuselage skins, aerospace conduits, seat frames |
| Ti-6Al-4V (Titanium Alloy) | α + β titanium alloy | 4.43 | 860 | 825 | 10 | 110 | Excellent (resistant to acids, seawater, high-temperature fuel corrosion; no stress corrosion risk) | ≤400 | Engine compressor blades, landing gear supports, structural load-bearing parts, engine casings |
| 316L (Austenitic Stainless Steel) | Stainless steel | 7.98 | 550 | 220 | 40 | 193 | Excellent (resistant to chloride ions, aviation fuel, hydraulic oil corrosion; strong oxidation resistance) | ≤500 | Aerospace hydraulic system components, fuel pipelines, fasteners, sealing parts |
| CFRP (Carbon Fiber Reinforced Polymer) | Composite material | 1.5–1.6 | 1500–2000 (fiber direction) | — | 1.5–2.0 | 130–150 | Excellent (chemical corrosion resistance, atmospheric aging resistance, anti-fatigue; prone to impact damage) | ≤180 | Primary wing structures, fuselage panels, tail sections, UAV structures, engine nacelles |
| Mg-Al-Zn (AZ31B) (Magnesium Alloy) | Magnesium alloy | 1.80 | 270 | 170 | 15 | 45 | Poor (easily oxidized; susceptible to seawater/acid corrosion; requires coating protection) | ≤150 | Aerospace electronic housings, lightweight interior parts, temporary tooling components |
Table 1. Comparison of Various Aerospace Materials
Process Design
Old Process
Prior to the improvement, the process primarily relied on a three-axis CNC milling machine combined with a vise for clamping, as shown in Figure 4.
First, six surfaces were machined, followed by the selection of a reference surface for further processing.
Subsequently, the remaining four surfaces and holes were machined in sequence to complete the product.
Each machining operation required alignment, and during clamping, technicians had to adjust the clamping position to prevent deformation of the workpiece caused by the vise jaws tightening.

New Process Plan
The new process utilizes a dedicated fixture in conjunction with a 3+2-axis CNC milling machine, and a specialized fixture has been designed, as shown in Figure 5.
Clamping is performed using the specialized fixture, which incorporates multiple error-proofing mechanisms.
The part simply needs to be placed into the fixture and secured.
Once mounted on the machine, a dial indicator is used for alignment and tool setting.
A secondary clamping operation is then performed, with the rotary head rotating to machine the other side holes.
This enables rapid machining, improving both machining efficiency and positioning accuracy, thereby achieving mass production, as shown in Figure 6.


Comparison of Process Methods
There are significant differences between the new and old processes.
Compared to the old process, the new process not only improves production efficiency but also enhances product precision and quality.
The old process places higher technical demands on machine operators, as shown in Table 2.
| Comparison Item | Traditional Process | New Process |
|---|---|---|
| Processing Method | Multiple-step machining, frequent tool changes, complex operations | Integrated processing, fewer steps, simplified workflow |
| Production Efficiency | Low, longer machining time | High, significantly reduced machining time |
| Machining Accuracy | Affected by repeated positioning, lower consistency | Improved precision, better consistency |
| Surface Quality | Tool marks likely, requires secondary finishing | Better surface finish, reduced post-processing |
| Tool Wear | High due to frequent tool changes and longer cycles | Reduced wear, longer tool life |
| Labor Intensity | High, requires skilled operators | Lower, easier to automate |
| Cost | Higher due to time and labor | Lower due to efficiency gains |
| Process Stability | Prone to variation between batches | More stable and repeatable |
Table 2. Comparison of Traditional and New Processes
Process Improvement Methods
Process Flow
Optimization of CNC machining programs: Building upon the previous machining process, we have optimized the machining programs in three key areas.
First, we have reduced idle tool travel and increased feed rates during rough machining. Second, we have revised previously inefficient toolpaths and optimized the machining sequence.
Third, we have streamlined the machining process by replacing the traditional rough and finish machining steps with rough, semi-finish, and finish machining, thereby improving overall machining efficiency.
Process Analysis
An improved process has been adopted, featuring significant optimizations in machine tools, clamping methods, and programming.
The new process fully meets the precision requirements for the parts, and the specialized fixtures also accommodate high-volume production and rapid model changeovers, enabling a rapid improvement in efficiency and delivery quality for mass production.
Validation of Results
By optimizing machining processes and parameters, followed by the design and development of specialized fixtures, we compared the old and new processes and recorded machining process and result data—including fixture setup and debugging time, machining accuracy, machining time, and machining quality—and performed statistical analysis on the experimental data.
(1) Comparison of Machining Accuracy:
As shown in Table 3, three-coordinate measurement revealed significant improvements in the control of key part dimensions;
| Item | Key Dimension 1 | Key Dimension 2 | Key Dimension 3 | Key Dimension 4 | Key Dimension 5 | Key Dimension 6 | Key Dimension 7 |
|---|---|---|---|---|---|---|---|
| Before Improvement | ✓ | ✓ | ✓ | ✓ | ✓ | ✓ | ✓ |
| After Improvement | × | ✓ | ✓ | ✓ | × | × | × |
Table 3 — Comparison Before and After Improvement
(2) Comparison of Machining Efficiency:
The use of a 3+2 CNC machine tool following the improvements, combined with single-setup clamping, significantly reduced setup and machine adjustment times, leading to a substantial increase in production efficiency, as shown in Table 4;
| Item | Number of Setups | Setup Time | Adjustment Time | Processing Time |
|---|---|---|---|---|
| Before Improvement | 4 times | 95 min | 310 min | 600 min |
| After Improvement | 1 time | 10 min | 55 min | 400 min |
Table 4 — Processing Efficiency Comparison
(3) Comparison of Product Yield Rate:
Based on comparative data from the batch processing and delivery of 400 finished parts, the yield rate prior to the improvement (excluding other factors) was 95.3%, while the yield rate after the improvement was 99.7%, representing a significant increase in the parts’ manufacturing yield rate.
Analysis of actual machining results shows that the improved process has led to significant improvements in both production efficiency and product yield.
While ensuring product precision, it has also reduced the time technical personnel spend on machine setup and clamping, saving time and directly lowering production costs, thereby enhancing production efficiency.
Conclusion
Based on the characteristics and properties of aerospace components, this paper examines the process from material selection to process route optimization, and on to the design and application of fixtures.
It identifies 7075 aerospace aluminum as the material of choice, conducts targeted research on its machining characteristics and challenges, and, guided by the practical demands of mass production, modifies the previous outdated process.
The specially designed fixtures, optimized machining programs, and improved processes successfully resolved a series of challenges, including part deformation, inconsistent quality, and low machining efficiency.
After extensive testing and validation through long-term, high-volume production, this solution has been proven to fully meet machining requirements, significantly enhancing product quality, stability, and production efficiency while substantially reducing the defect rate.
It provides an effective reference for the mass production of aerospace parts and fixture design.
Future research in the machining of aerospace materials and components will continue to be explored in depth:
1. Continue to explore new materials for aerospace applications, primarily focusing on requirements and characteristics such as lightweight, high strength, machinability, and low cost;
2. Continue to innovate in clamping methods and process routes, designing fixtures for rapid clamping to enhance overall machining performance, efficiency, and stability, and improve the reliability of part machining accuracy;
3. Introduce new AI-driven machining strategies, utilizing AI to comprehensively analyze machining processes and strategies, rapidly optimize programs and methods, and integrate AI technology into smart manufacturing and green manufacturing.
This will significantly boost productivity in the CNC machining sector and enable large-scale application.